Kabina pentagonalna asymetryczna PTJ 100x90 drzwi prawe na długiej ściance
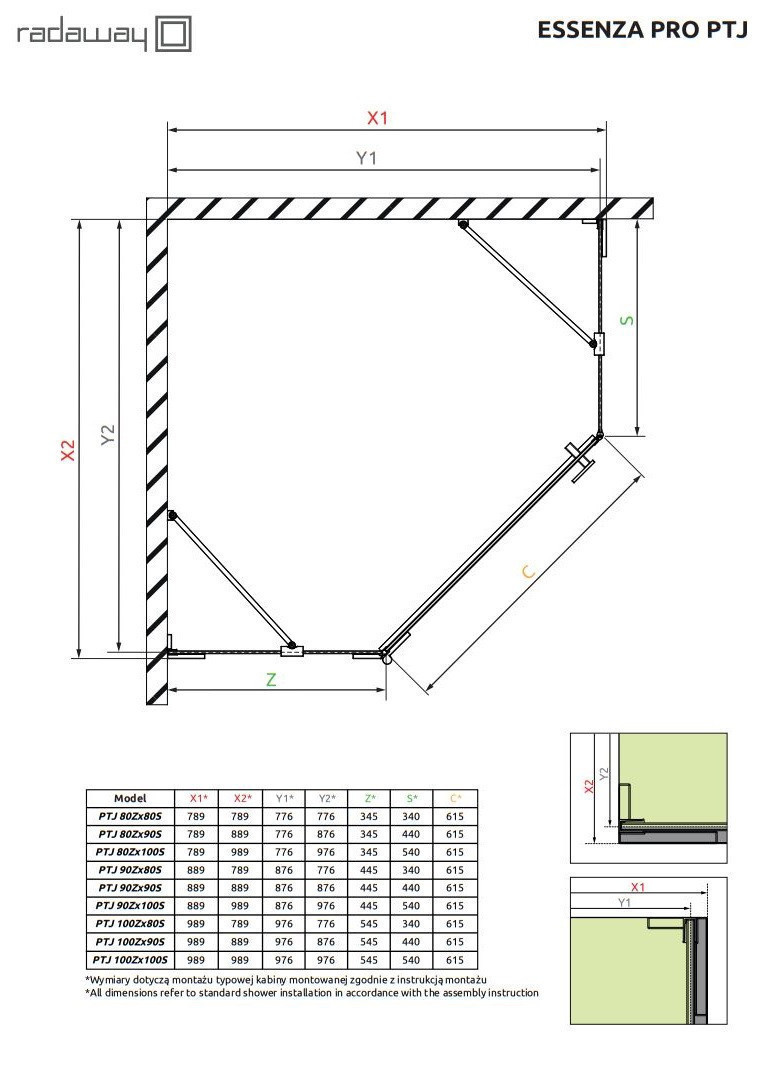
UWAGA! Standardowo kabiny dopasowane są do montażu na brodziku o określonych wymiarach i właśnie te wymiary są podane w nazwie kabiny lub jej części. Rzeczywiste wymiary gabarytowe kabiny są nieco mniejsze od nominalnych podanych w nazwie artykułu. Jeśli planujesz montaż kabiny bezpośrednio na posadzce, zwróć uwagę na wymiary gabarytowe (X1, X2) oraz wymiary do osi szyby (Y1, Y2), które podane są na rysunku technicznym.
Seria Essenza Pro wyróżnia się subtelną elegancją i zdyscyplinowaną formą geometryczną. Montaż do ściany za pomocą systemu klamer nadaje kabinie lekkości, harmonijnie budując przestrzeń każdej łazienki.
Wykończenia w kolorze szczotkowanej miedzi (Brushed Copper) ciekawie odznaczają się od prostej tafli szkła. Tego rodzaju kabina nadaje łazience luksusowy charakter i będzie pasować zarówno do aranżacji klasycznych jak i nowoczesnych.
Zalety Essenza Pro PTJ:
| sposób otwierania | drzwi otwierane |
|---|---|
| wysokość | 200 |
| wymiary nominalne | 100x90 |
| powłoka | tak |
| kolor wypełnienia | przeźroczysty |
| wypełnienie | szkło |
| kolor profili | miedź szczotkowana |
Oceń by pomóc innym klientom w podjęciu właściwego wyboru
Marka Radaway to znany i ceniony producent wysokiej jakości komfortowych kabin prysznicowych odznaczających się ciekawym wzornictwem oraz precyzją wykonania. Marka jest obecna na rynku nieprzerwanie od 2002 roku, stale poszerzając swój asortyment o rozwiązania podnoszące funkcjonalność kabin prysznicowych i natryskowych. Wieloletnie doświadczenie marki sprawia, że Radaway doskonale wpisuje się w potrzeby i oczekiwania Klientów urządzających łazienki.
W asortymencie Radaway możemy znaleźć kompletne kabiny prysznicowe, drzwi wnękowe, parawany nawannowe, brodziki prysznicowe, brodziki podpłytkowe i akcesoria. Marka jest znana również ze swojej oferty kabin niestandardowych, które projektuje i wykonuje na specjalne zamówienie Klienta.
Kabiny prysznicowe Radaway to szeroki wybór rozwiązań, pośród których każdy z łatwością znajdzie system najlepiej sprawdzający się w danym wnętrzu. Odpowiadając na zróżnicowane potrzeby Klientów marka dostarcza wysokiej jakości kabiny otwarte typu walk-in, kabiny prostokątne i kwadratowe, kabiny półokrągłe, przyścienne prostokątne i pięciokątne. Dodatkowo w ofercie kabin półokrągłych możemy wyróżnić systemy asymetryczne oraz kabiny półokrągłe typu B. Ofertę kabin uzupełnia oferta brodzików, w której znajdziemy rozwiązania kompatybilne z poszczególnymi kabinami. A dla kabin typu walk-in Radaway oferuje brodziki podpłytkowe w wariantach z kratką lub odpływem.
Klientów poszukującej ciekawej stylistyki, wysokiej jakości oraz komfortu użytkowania zapraszamy do zapoznania się z naszą ofertą na prysznice Radaway i akcesoria. W asortymencie posiadamy szeroki wybór rozwiązań odznaczających się doskonałymi walorami estetycznymi i funkcjonalnymi. Kabiny Radaway oferujemy w szerokiej palecie kolorystycznej, także w najmodniejszych w ostatnich sezonach kolorach czarnym i złotym.
Radaway Sp. z o.o.
ul. Rabowicka 59
62-020 Jasin
+48 61 835 75 10
office@radaway.pl
Jesteśmy do Państwa dyspozycji Chętnie doradzimy i pomożemy wybrać odpowiednie produkty.
Oferujemy mega atrakcyjne ceny wszystkich znanych marek. Kupisz wszystko w jednym miejscu.
Wszystkie popularne produkty dostępne w ciągu 24h.
Jesteśmy firmą rodzinną. Nasz sklep rozwijamy od 2008 roku. Dbamy o naszych klientów, cieszymy się gdy wracają.














