Kabiny z serii Nes Black Frame doskonale sprawdzą się we wnętrzach inspirowanych nowojorskimi loftami i industrialnym designem. Czarna ramka wykonana farbą ceramiczną podkreśli surowy, a zarazem elegancki charakter łazienki. Dzięki temu, że zdobienie zespalane jest ze szkłem w procesie hartowania, kabinę wyróżnia trwałość, ponadprzeciętna jakość oraz odporność na ścieranie i promieniowanie UV. Atutem serii jest specjalny system, pozwalający na niwelację krzywizny ściany do 15 mm. Jest to ogromna zaleta w przypadku łazienki zlokalizowanej w bloku lub w starym budownictwie, gdzie często mamy do czynienia z krzywymi ścianami.
Kabina składa się z:
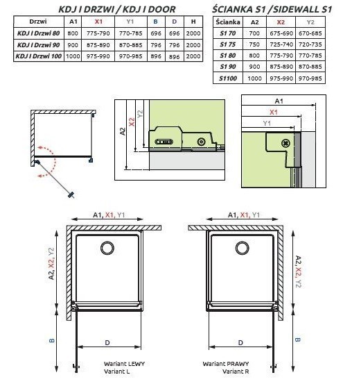
Zalety kabiny NES BLACK KDJ I FRAME:
| sposób otwierania | drzwi otwierane |
|---|---|
| wysokość | 200 |
| wymiary nominalne | 100x80 |
| powłoka | tak |
| kolor wypełnienia | przeźroczysty |
| wypełnienie | szkło |
| kolor profili | czarny |
Oceń by pomóc innym klientom w podjęciu właściwego wyboru
Marka Radaway to znany i ceniony producent wysokiej jakości komfortowych kabin prysznicowych odznaczających się ciekawym wzornictwem oraz precyzją wykonania. Marka jest obecna na rynku nieprzerwanie od 2002 roku, stale poszerzając swój asortyment o rozwiązania podnoszące funkcjonalność kabin prysznicowych i natryskowych. Wieloletnie doświadczenie marki sprawia, że Radaway doskonale wpisuje się w potrzeby i oczekiwania Klientów urządzających łazienki.
W asortymencie Radaway możemy znaleźć kompletne kabiny prysznicowe, drzwi wnękowe, parawany nawannowe, brodziki prysznicowe, brodziki podpłytkowe i akcesoria. Marka jest znana również ze swojej oferty kabin niestandardowych, które projektuje i wykonuje na specjalne zamówienie Klienta.
Kabiny prysznicowe Radaway to szeroki wybór rozwiązań, pośród których każdy z łatwością znajdzie system najlepiej sprawdzający się w danym wnętrzu. Odpowiadając na zróżnicowane potrzeby Klientów marka dostarcza wysokiej jakości kabiny otwarte typu walk-in, kabiny prostokątne i kwadratowe, kabiny półokrągłe, przyścienne prostokątne i pięciokątne. Dodatkowo w ofercie kabin półokrągłych możemy wyróżnić systemy asymetryczne oraz kabiny półokrągłe typu B. Ofertę kabin uzupełnia oferta brodzików, w której znajdziemy rozwiązania kompatybilne z poszczególnymi kabinami. A dla kabin typu walk-in Radaway oferuje brodziki podpłytkowe w wariantach z kratką lub odpływem.
Klientów poszukującej ciekawej stylistyki, wysokiej jakości oraz komfortu użytkowania zapraszamy do zapoznania się z naszą ofertą na prysznice Radaway i akcesoria. W asortymencie posiadamy szeroki wybór rozwiązań odznaczających się doskonałymi walorami estetycznymi i funkcjonalnymi. Kabiny Radaway oferujemy w szerokiej palecie kolorystycznej, także w najmodniejszych w ostatnich sezonach kolorach czarnym i złotym.
Radaway Sp. z o.o.
ul. Rabowicka 59
62-020 Jasin
+48 61 835 75 10
office@radaway.pl
Jesteśmy do Państwa dyspozycji Chętnie doradzimy i pomożemy wybrać odpowiednie produkty.
Oferujemy mega atrakcyjne ceny wszystkich znanych marek. Kupisz wszystko w jednym miejscu.
Wszystkie popularne produkty dostępne w ciągu 24h.
Jesteśmy firmą rodzinną. Nasz sklep rozwijamy od 2008 roku. Dbamy o naszych klientów, cieszymy się gdy wracają.











